- 価格
- 100万円
- 種別
- 中古戸建
-
- 所在地
- 富山県高岡市横田町 横田町中古住宅(店舗 有)
- 交通
- あいの風とやま鉄道 高岡駅 徒歩1.7m 徒歩23分
物件詳細
| 築年月 | 新築/中古 | ||
|---|---|---|---|
| 面積 | 計測方式 | ||
| バルコニー | 向き | ||
| 建物階数 | 地上2階 | 部屋階数 | |
| 建物構造 | 木造 | ||
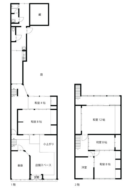
| 敷地全体面積 | 386.63m² | 延べ床面積 | 240.72m² |
| 建築面積 | 160.31m² | ||
| 間取内容 | |||
| 駐車場 | 取引態様 | 仲介 | |
| 引渡/入居時期 | 即時 | 現況 | 空家 |
| 地目 | 宅地 | 用途地域 | 近隣商業 |
| 都市計画 | 市街化区域 | 地勢 | |
| 建ぺい率 | 80% | 容積率 | 200% |
| 土地権利 | 接道状況 | 一方 | |
| 周辺環境 | |||
| 設備・条件 | |||
| 物件番号 | |||
Loading...
※物件掲載内容と現況に相違がある場合は現況を優先と致します。
- 有限会社 酢谷不動産
- 〒933-0942 富山県高岡市川原町2番3号
TEL: 0766-25-3609 / FAX: 0766-25-6463 - 宅建免許番号: 富山県知事免許(5)第2393号









